Omschrijving
Bent u op zoek naar een ruime tussenwoning met drie slaapkamers, een zolderverdieping waar eenvoudig een vierde slaapkamer kan worden gerealiseerd, een aangebouwde stenen berging, dakkapel én een zonnige achtertuin op het westen? Dan is deze keurige woning precies wat u zoekt!
De woning staat op een perceel van 168m² eigen grond, is voorzien van 7 zonnepanelen en beschikt over een moderne badkamer die in 2022 is vernieuwd. U parkeert voor de deur op eigen terrein en woont in
+ Lees de volledige omschrijving
Bent u op zoek naar een ruime tussenwoning met drie slaapkamers, een zolderverdieping waar eenvoudig een vierde slaapkamer kan worden gerealiseerd, een aangebouwde stenen berging, dakkapel én een zonnige achtertuin op het westen? Dan is deze keurige woning precies wat u zoekt!
De woning staat op een perceel van 168m² eigen grond, is voorzien van 7 zonnepanelen en beschikt over een moderne badkamer die in 2022 is vernieuwd. U parkeert voor de deur op eigen terrein en woont in een groene woonwijk nabij recreatieplas het Bovenwater en natuurgebied de Oostvaardersplassen.
Op fietsafstand vindt u alle dagelijkse voorzieningen. In de wijk zelf zijn onder andere een huisartsenpraktijk, een basisschool en kinderopvang aanwezig. Voor uw dagelijkse boodschappen kunt u terecht in winkelcentrum Jol of Warande, beide op korte fiets- of autoafstand gelegen. Hier vindt u tevens diverse andere winkels en voorzieningen.
Interesse in deze ruime woning? Neem dan gerust, eventueel via uw NVM-aankoopmakelaar, contact met ons op.
Indeling
Begane grond: Entree; hal met meterkast; tuingerichte woonkamer van ongeveer 35m² met een trapkast en openslaande deuren naar de achtertuin; ruime opstel mogelijkheden voor eettafel aanwezig; keurige keuken aan de voorzijde van de woning welke onder meer is voorzien van een kookeiland met een inductiekookplaat, grill en afzuigkap; verder is de keuken voorzien van een oven, koelkast, vriezer en een vaatwasser.
De begane grond is voorzien van een plavuizen vloer.
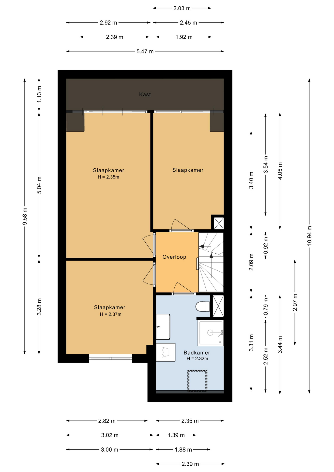
Eerste verdieping: Overloop; drie slaapkamers van respectievelijk 9,8-, 9,9- en 14,7m², waarvan; volledig betegelde badkamer welke in 2023 is vernieuwd en is voorzien van een inloopdouche, radiator, wastafelmeubel, een tweede toilet, de wasmachineaansluiting en een dakraam voor natuurlijk lichtinval en ventilatie.
Tweede verdieping: Via vaste trap te bereiken verdieping, welke momenteel is ingericht als vierde slaapkamer. Tevens bevindt zich hier de opstelling van de cv-ketel, de mechanische ventilatie en de omvormer voor de zonnepanelen (2023).
Tuin: De 12 meter diepe en 5,5 meter brede achtertuin is op het westen georiënteerd en is voorzien van bestrating, beplanting en een erfafscheiding.
Prijs: € 375.000,00 kosten koper
Aanvaarding: in overleg (snel mogelijk).
Bijzonderheden:
• Bouwjaar: 1982
• Perceeloppervlakte: 168m² eigen grond
• Woonoppervlakte: 121m²
• Overig inpandige ruimte (berging): 6m²
• Inhoud: 445m³
• CV: Remeha hr-combi uit 2013
• Dakkapel geplaatst in 2022
• 7 zonnepanelen geplaatst in 2023
• Schilderwerk buitenzijde (voorzijde): 2025
• Energielabel: B
• Openslaande deuren aan de tuinzijde uitgevoerd in aluminium
• Parkeervoorziening op eigen terrein
• Woont u graag in een waterrijke omgeving met vele wandel/fietsroutes? Dan is dit uw kans!!
• Omdat de verkoper de woning zelf nooit heeft bewoond wordt er een zogenaamde "non zelfbewoningsclausule" opgenomen
• De gepubliceerde informatie is indicatief en toegepaste maten betreffen circa maten waaraan nadrukkelijk geen rechten kunnen worden ontleend.
Deze woning bezichtigen? Neem uw NVM-aankoopmakelaar mee.