Omschrijving
Wonen aan de stadsgracht in het gewilde Homeruskwartier? Dit royale en stijlvolle herenhuis in Almere Poort biedt alle ruimte en comfort die je zoekt. De woning is uitgevoerd in sfeervolle jaren ’30 stijl en beschikt over een ruime woonkamer met open keuken, drie grote slaapkamers, een extra was-/kledingkamer, een werkkamer én een zonnig dakterras op de tweede verdieping. Dankzij de moderne afwerking, vloerverwarming op alle verdiepingen en een onderhoudsarme tuin kun je hier zonder verb
+ Lees de volledige omschrijving
Wonen aan de stadsgracht in het gewilde Homeruskwartier? Dit royale en stijlvolle herenhuis in Almere Poort biedt alle ruimte en comfort die je zoekt. De woning is uitgevoerd in sfeervolle jaren ’30 stijl en beschikt over een ruime woonkamer met open keuken, drie grote slaapkamers, een extra was-/kledingkamer, een werkkamer én een zonnig dakterras op de tweede verdieping. Dankzij de moderne afwerking, vloerverwarming op alle verdiepingen en een onderhoudsarme tuin kun je hier zonder verbouwen direct intrekken. Een unieke kans om royaal te wonen op een prachtige locatie met alle voorzieningen binnen handbereik!
Het Homeruskwartier in Almere Poort is een fijne en kindvriendelijke wijk met een breed aanbod aan voorzieningen binnen handbereik. Op loopafstand vind je diverse supermarkten, waaronder een Plus en een nabijgelegen Albert Heijn. In de directe omgeving liggen tevens meerdere basisscholen, een middelbare school, de Internationale School, de peuterspeelzaal, een gezondheidscentrum én het Cascadepark.
Voor recreatie kun je terecht bij het Almeerderstrand, het nabijgelegen bosgebied Pampushout en de groene parken in Almere Poort. Ook de Oostvaardersplassen, een van de bekendste natuurgebieden van Nederland, liggen op korte (fiets)afstand.
De bereikbaarheid is uitstekend: het NS-station Almere Poort bevindt zich op fietsafstand en een busstation ligt zelfs op loopafstand. Met de auto ben je binnen enkele minuten op de A6 richting Amsterdam of Lelystad en de A27 richting Utrecht. Hierdoor woon je rustig, maar met een razendsnelle verbinding naar de Randstad.
Nieuwsgierig? Dan nodigen wij u graag uit om een bezoek te brengen aan Aresstraat 15!
Indeling
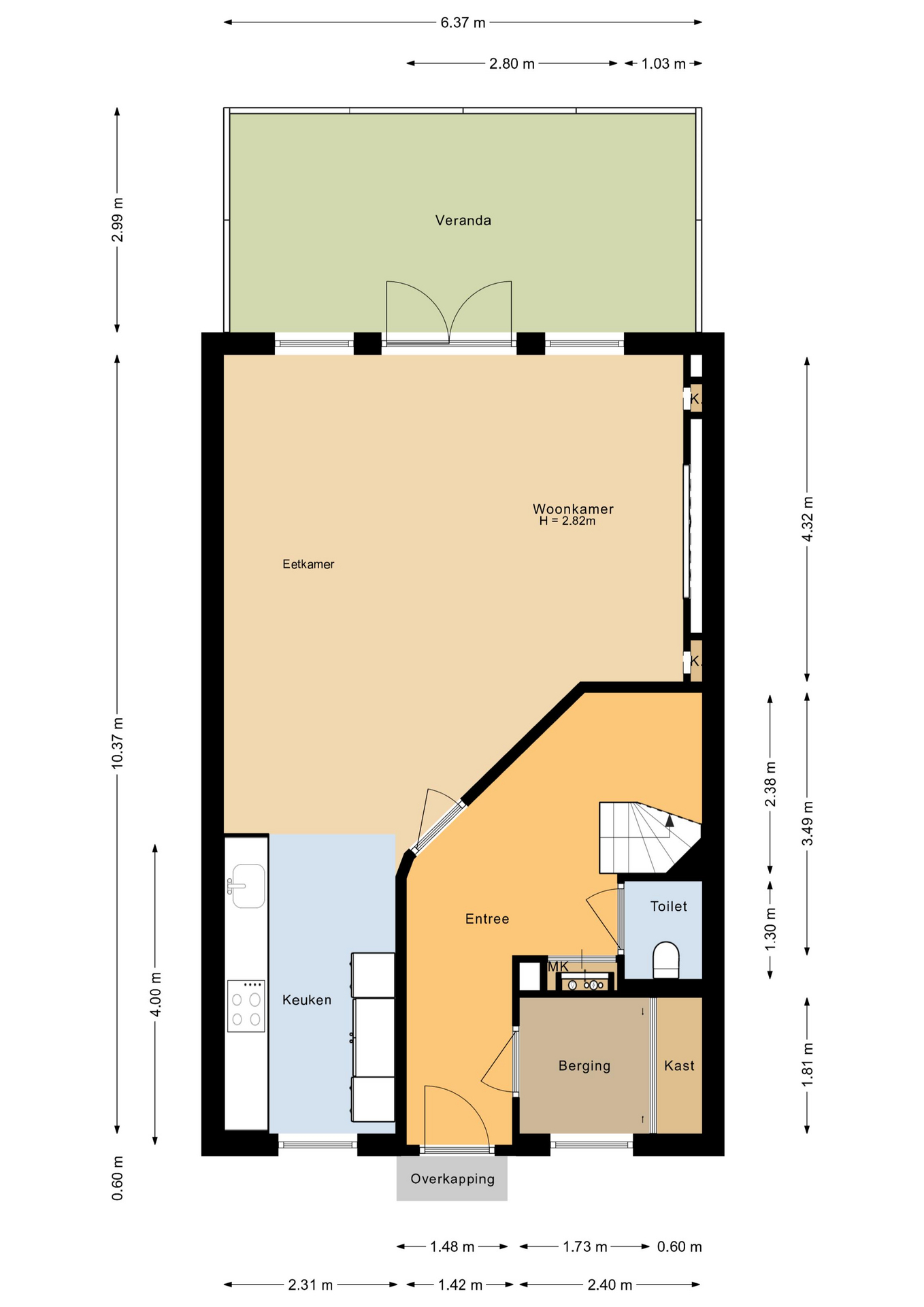
Begane grond: Entree; hal welke toegang geeft tot de inpandige berging, het toilet, de meterkast, de trap naar eerste de verdieping en de deur naar de woonkamer met straatgerichte open keuken; woonkamer over de volledige breedte van de woning van totaal ongeveer 36m², vanuit de woonkamer heeft u toegang tot het terras aan het water van 6,37m breed bij 2,99 diep; aan de voorzijde van de woning gesitueerde keuken in moderne uitvoering welke is voorzien van de navolgende inbouwapparatuur: inductiekookplaat, afzuigkap, twee combi-ovens met magnetron functie, koelkast, vriezer en een volledig geïntegreerde vaatwasser.
De begane grond is voorzien van een laminaatvloer met vloerverwarming.
Eerste verdieping: Zeer royale overloop; twee slaapkamers van respectievelijk 9,3m² en 17,9m²; wasruimte met witgoedaansluitingen van 7,7m²; keurige, volledig betegelde badkamer welke is voorzien van een inloopdouche, tweede toilet en een wastafelmeubel met dubbele wasbak.
De verdieping is voorzien van een laminaatvloer met vloerverwarming.
Tweede verdieping: Via een vaste trap te bereiken; op deze verdieping treft u eveneens een royale overloop met toegang tot een woningbrede slaapkamer van 27,5m² en een vierde slaapkamer/ kantoorruimte van 5,5m². Vanuit de overloop te bereiken dakterras; het dakterras is aan de voorzijde gelegen, gesitueerd op het zuidwesten en meet 3,30m diep x 6,41m breed.
Ook deze verdieping is voorzien van een laminaatvloer met vloerverwarming.
Buiten: De (voor)tuin bij de woning is gelegen op het zuidwesten. Dit betekent dat u hier tot laat in de avond de zon in de tuin zult hebben. De tuin is is voorzien van een tegelpad naar de woning, kunstgras en een erfafscheiding.
Prijs: € 650.000,00 k.k.
Aanvaarding: In overleg.
Bijzonderheden:
• Bouwjaar: 2017
• Perceeloppervlakte: 139m² eigen grond
• Woonoppervlakte: 172m²
• Inhoud: 589m³
• Alle verdiepingen zijn voorzien van vloerverwarming
• Keurige keuken en badkamer
• Drie royale slaapkamers, een waskamer en een vierde slaapkamer of kantoorruimte
• Dakterras en (voor)tuin gesitueerd op het zonnige zuidwesten
• Direct aan het water gelegen met een terras boven het water
• NS station Almere-Poort op 5 minuten fietsen van de woning
• De woning is voorzien van 12 zonnepanelen (2022)
• Airconditioning op grote slaapkamer 2e verdieping
• De tuin en schilderwerk zijn beiden in juni 2024 uitgevoerd
• Aangesloten op stadsverwarming, dus gasloos
• Energielabel A+, geldig tot 08-10-2035
• De gepubliceerde informatie is indicatief en toegepaste maten betreffen circa maten waaraan nadrukkelijk geen rechten kunnen worden ontleend.
Deze woning bezichtigen? Neem uw eigen NVM-aankoopmakelaar mee!
Kenmerken
Oppervlakten en inhoud
Oppervlakte woonkamer
35 m²
Overige inpandige ruimte
0 m²
Gebouw gebonden buitenruimte
42
Perceeloppervlakte
139 m²
Indeling
Bouw
Soort bouw
Bestaande bouw
Overdracht
Energie
Isolatie
Dakisolatie, Muurisolatie, Vloerisolatie, Dubbel glas en Volledig geisoleerd
Verwarming
Stadsverwarming en Vloerverwarming geheel
Warm water
Centrale voorziening en Stadsverwarming