Omschrijving
Wanneer u altijd al heeft willen wonen in een geschakelde 2-onder-1 kapwoning met een carport, garage, parkeergelegenheid op eigen terrein en VIER slaapkamers, let dan goed op!
Wij bieden u nu een woning aan welke ook nog eens is gelegen op een kavel van niet minder dan 230m² eigen grond in een kinderrijke woonwijk met vrijwel alle voorzieningen binnen bereik. Een woning met een zeer fraaie en in 2023 vervangen keuken, een visgraat vloer met vloerverwarming op de begane gron
+ Lees de volledige omschrijving
Wanneer u altijd al heeft willen wonen in een geschakelde 2-onder-1 kapwoning met een carport, garage, parkeergelegenheid op eigen terrein en VIER slaapkamers, let dan goed op!
Wij bieden u nu een woning aan welke ook nog eens is gelegen op een kavel van niet minder dan 230m² eigen grond in een kinderrijke woonwijk met vrijwel alle voorzieningen binnen bereik. Een woning met een zeer fraaie en in 2023 vervangen keuken, een visgraat vloer met vloerverwarming op de begane grond en een heerlijk vrij gelegen achtertuin op het zuidoosten.
De woning is zeer centraal gelegen en bevindt zich op steenworp afstand van het stadshart van Lelystad, Centraal Station, enkele basisscholen en het Woldpark. Op de fiets bent u snel bij diverse sportfaciliteiten, recreatiegebieden, het IJsselmeer/Markermeer en Gelderse Hout. Daarnaast woont u op nog geen 5 fietsminuten van onder meer het Buurtcentrum Boswijk met onder andere een AH-supermarkt, gezondheidscentrum met huisarts en apotheek, maar ook diverse kleinschalige winkeliers.
Interesse in deze keurige 2-onder-1-kapwoning? Neem dan, eventueel via uw NVM-aankoopmakelaar, gerust contact met ons op voor het inplannen van een bezichtiging!
Indeling
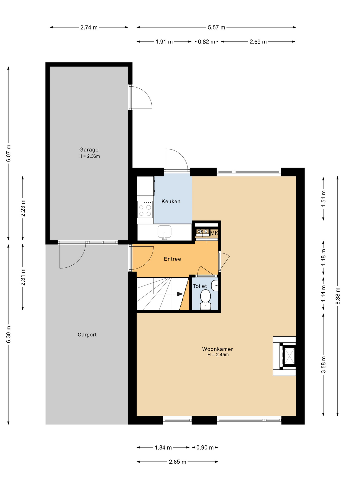
Begane grond: Entree; hal met toilet met fonteintje, meterkast (vervangen in 2023), trapopgang en toegang tot de woonkamer/ keuken; aan de voorzijde gelegen woonkamer van 27m² met open haard; aan de achterzijde bevindt zich de luxe inbouwkeuken uit 2023 in hoekopstelling welke is voorzien van een combi-magnetron, een geïntegreerde vaatwasser, inductiekookplaat, design afzuigschouw, Quooker, koelkast, kastruimte en voldoende ruimte voor een flinke eetkamertafel; vanuit de keuken is er toegang tot de tuin.
De begane grond is voorzien van een visgraat PVC vloer met vloerverwarming en glad gestuukte wanden
Eerste verdieping: Overloop met bergkast; drie flinke slaapkamers van respectievelijk 9,6-, 10,6- en 13,1m²; keurige en volledig betegelde badkamer (vervangen in 2012) welke is voorzien van volledige betegeling, een ligbad, douche, tweede (eveneens hangend) toilet en een wastafelmeubel.
De verdieping is eveneens voorzien van een visgraat PVC vloer.
Tweede verdieping: Voorzolder met de CV (ATAG hr-combi uit 2015), de witgoedaansluitingen en flink wat bergruimte; een vierde slaapkamer van bijna 14m² met een vaste kast en een dakkapel.
Garage: De garage meet 6,07mtr. x 2,74mtr.; de garage is zowel via de voorzijde als vanuit de tuin bereikbaar en is voorzien van elektra.
Tuin: De op het zuidoosten gelegen achtertuin meet 8,8 x 12 meter, is voorzien van een heerlijk ruim terras bij de woning welke doorloopt in een terras achterin de tuin; deze tuin biedt, door de ligging aan gemeentelijk groen, de nodige privacy en is ideaal gelegen wanneer u van van de zon wil genieten; de tuin is verder voorzien van een erfafscheiding en diverse beplanting. Vanuit de tuin is de garage toegankelijk.
Prijs: € 450.000,00 kosten koper
Aanvaarding: in overleg.
Bijzonderheden:
• Bouwjaar: 1983
• Perceeloppervlakte: 230m² eigen grond
• Woonoppervlakte: 119m²
• Overig inpandige ruimte: 17m²
• Gebouwgebonden buitenruimte (garage): 18m²
• Inhoud: 470m³
• De begane grond is voorzien van een fraaie visgraat vloer
• De houten kozijnen (begane grond) zijn in 2021 geschilderd
• Heerlijk ruime garage welke ook vanuit de tuin bereikbaar is
• Parkeren op eigen terrein mogelijk
• De keuken is in 2023 geplaatst
• 10 zonnepanelen welke in 2023 zijn geplaatst
• Cv-ketel: ATAG hr-combi uit 2015, eigendom
• Energielabel: B, geldig tot 22 februari 2036
• De gepubliceerde informatie is indicatief en toegepaste maten betreffen circa maten waaraan nadrukkelijk geen rechten kunnen worden ontleend.