Omschrijving
Bent u op zoek naar een centraal gelegen woning aan de rand van het stadshart van Lelystad met het Centraal Station Lelystad op loopafstand? Dan is deze fijne HOEKwoning absoluut een bezichtiging waard! De woning beschikt over een complete keuken in praktische U-opstelling, vier slaapkamers, grotendeels kunststof kozijnen en een aangebouwde garage met parkeermogelijkheid op eigen terrein.
En er is meer! De zij- en achtertuin van ruim 14 meter diep en 12 meter breed, gesituee
+ Lees de volledige omschrijving
Bent u op zoek naar een centraal gelegen woning aan de rand van het stadshart van Lelystad met het Centraal Station Lelystad op loopafstand? Dan is deze fijne HOEKwoning absoluut een bezichtiging waard! De woning beschikt over een complete keuken in praktische U-opstelling, vier slaapkamers, grotendeels kunststof kozijnen en een aangebouwde garage met parkeermogelijkheid op eigen terrein.
En er is meer! De zij- en achtertuin van ruim 14 meter diep en 12 meter breed, gesitueerd op het oosten, biedt vanaf het begin van de middag tot zonsondergang heerlijke zonuren.
Alle voorzieningen liggen op steenworp afstand: winkels, diverse (basis)scholen, bus- en treinstation en theater ‘Agora’. Dit is uw kans om te wonen aan de rand van het centrum van Lelystad!
Interesse? Neem dan gerust, eventueel via uw NVM-aankoopmakelaar, contact met ons op voor het inplannen van een bezichtiging!
Indeling
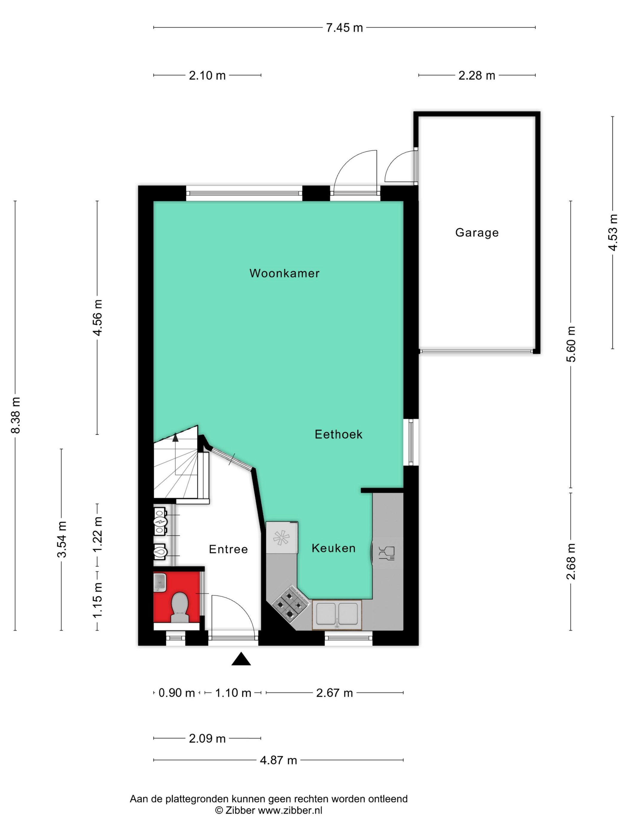
Begane grond: entree; hal met toiletruimte, meterkast, trapopgang naar de verdieping en toegang tot de woonkamer; tuingerichte woonkamer van 22m² met voldoende ruimte voor de eettafel; aan de voorzijde gesitueerde keuken in U-opstelling welke is voorzien van een gasfornuis, afzuigkap, dubbele wasbak en een volledig geïntegreerde vaatwasser. Aan de zijkant van de woning treft u de garage welke middels een loopdeur via de tuin te bereiken is.
De begane grond is voorzien van een plavuizenvloer.
Eerste verdieping: Overloop; twee slaapkamers, van respectievelijk 12,9m² en 16,9m², waarvan één woningbreed en voorzien van een kleine dakkapel en een dakraam, de slaapkamer aan de voorzijde beschikt over de witgoedaansluitingen; volledig betegelde badkamer welke is voorzien van een ligbad, toilet, wastafelmeubel en een douche.
De verdieping is voorzien van een vinylvloer.
Tweede verdieping: Overloop; twee slaapkamers van respectievelijke 6,1- en 9,6m²; separate bergruimte voorzien van een dakraam en de cv-ketel opstelling.
De verdieping is grotendeels voorzien van een laminaatvloer.
Tuin: de zij- en achtertuin meet 14 meter diep en 12 meter breed is voorzien van bestrating, een gazon, een vijver en een groene erfafscheiding; in de zijtuin bevindt zich de garage welke is voorzien van elektra.
Prijs: € 325.000,00 kosten koper
Aanvaarding: in overleg.
Bijzonderheden:
• Bouwjaar: 1981
• Woonoppervlakte: 105m²
• Inhoud: 410m³
• Perceeloppervlakte: 253m² eigen grond
• Grotendeels voorzien van kunststof kozijnen
• Ramen met HR++ glas
• CV Intergas 2019 (eigendom)
• In 2025 is de meterkast vernieuwd
• Parkeergelegenheid op eigen terrein
• VIER slaapkamers
• Aansluiting voor wasmachine en droger ook aanwezig op de tweede verdieping
• Aangebouwde garage van 10m²
• Energielabel: B, geldig tot 19 november 2035
• De gepubliceerde informatie is indicatief en toegepaste maten betreffen circa maten waaraan nadrukkelijk geen rechten kunnen worden ontleend.
Meer informatie over deze woning? KIJK op BuismanMakelaars.nl of BEL (0320) 20 20 40
Deze woning bezichtigen? Neem uw eigen NVM-Aankoopmakelaar mee!