Omschrijving
Ben je op zoek naar een ruime drive-in woning met maar liefst vijf slaapkamers en een zonnige tuin op het zuiden? Dan is dit huis precies wat je zoekt! Deze verrassend ruime woning biedt volop mogelijkheden om er helemaal jouw eigen thuis van te maken. De indeling is praktisch én veelzijdig. Op de begane grond vind je een inpandige garage en een multifunctionele ruimte die perfect kan dienen als werkplek, hobbyruimte of extra slaapkamer. Op de eerste verdieping bevindt zich de lichte woo
+ Lees de volledige omschrijving
Ben je op zoek naar een ruime drive-in woning met maar liefst vijf slaapkamers en een zonnige tuin op het zuiden? Dan is dit huis precies wat je zoekt! Deze verrassend ruime woning biedt volop mogelijkheden om er helemaal jouw eigen thuis van te maken. De indeling is praktisch én veelzijdig. Op de begane grond vind je een inpandige garage en een multifunctionele ruimte die perfect kan dienen als werkplek, hobbyruimte of extra slaapkamer. Op de eerste verdieping bevindt zich de lichte woonkamer met een prettige indeling en een balkon naar de achtertuin. Daarnaast beschikt de woning over parkeergelegenheid op eigen terrein.
Centraal gelegen in de Atolwijk, welke bekend staat als een rustige, groene en kindvriendelijke buurt. De wijk is ruim opgezet met brede straten, veel openbaar groen en diverse speeltuintjes. In de directe omgeving vind je meerdere basisscholen, kinderopvang en winkels. De ligging is bovendien zeer gunstig: via de A6 ben je binnen korte tijd in Almere of Amsterdam, ook het treinstation Lelystad Centrum ligt op ongeveer tien minuten fietsen, met directe verbindingen richting de Randstad. Kortom: een groene woonomgeving met alle voorzieningen binnen handbereik.
Interesse in deze ruime woning? Neem dan, eventueel via uw NVM-aankoopmakeaar, contact met ons op voor het inplannen van een bezichtiging.
Indeling
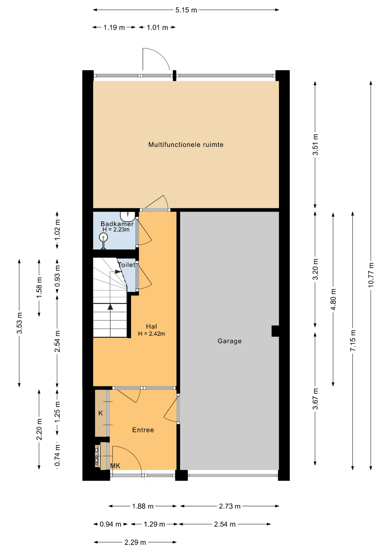
Begane grond: Entree met meterkast; hal voorzien van een toilet met fonteintje en een badkamer welke is voorzien van een douche en wastafel; inpandige berging/ garage van 19,5m² (afmeting: 2,73mtr. x 7.15mtr.); multifunctionele ruimte (slaapkamer/ werkkamer/ hobbyruimte) van 18m² met toegang tot de tuin welke op het zuiden is gesitueerd.
De begane grond is grotendeels voorzien van een plavuizenvloer.
Eerste verdieping: Overloop; woonkamer van ongeveer 29m² met toegang tot het, op het zuiden gesitueerde, balkon van 1,4 x 5,48 meter; een afsluitbare keuken in L-opstelling welke is voorzien van ondermeer een 5-pits gasfornuis, oven, afzuigkap, koelkast, vriezer en een volledig geïntegreerde vaatwasser; slaap-, eet-, werkkamer van 8,3m².
De verdieping is eveneens grotendeels voorzien van een plavuizenvloer.
Tweede verdieping: Overloop met opstelling van de cv-ketel en de witgoedaansluitingen; drie slaapkamers van respectievelijk 8,4-, 12,3- en een woningbrede slaapkamer van 19,1m²; volledig betegelde tweede badkamer welke is voorzien van een douche, toilet, wastafelmeubel en een ligbad.
De verdieping is grotendeels voorzien van een laminaatvloer.
Tuin: Achtertuin georiënteerd op het zuiden van 7 meter diep x 5,70 meter breed. De tuin is voorzien van flink wat straatwerk waardoor er een heerlijk ruim terras is ontstaan, een berging met overkapping, erfafscheidingen en een achterom. In deze tuin geniet u vrijwel de gehele dag van de zon!
Prijs: € 350.000,00 kosten koper
Aanvaarding: in overleg.
Bijzonderheden:
• Bouwjaar: 1970
• Woonoppervlakte: 148m²
• Overig inpandige ruimte: 20m²
• Gebouwgebonden buitenruimte: 8m²
• Inhoud: 535m³
• Perceeloppervlakte: 123m² eigen grond
• CV-ketel: Intergas, bouwjaar 2009, eigendom
• Een (h)eerlijke woning met maar liefst VIJF slaapkamers
• De woning is gelegen in een groene woonomgeving
• Parkeergelegenheid op eigen terrein
• Energielabel: C, geldig tot 10 november 2035
• De woning is grotendeels voorzien van kunststof kozijnen
• De gevelbeplating en kozijnen zijn in 2025 geschilderd
• De meterkast is in 2024 vernieuwd
• De gepubliceerde informatie is indicatief en toegepaste maten betreffen circa maten waaraan nadrukkelijk geen rechten kunnen worden ontleend.